World Class RV - Kimberley Rose
World Class RV - Desert Diamond
World Class RV - Pre Loved Motor Homes

World Class RV - Exclusive Motor Homes
World Class RV - Exclusive Motor Homes
World Class RV - About Us
World Class RV - Contact Us
Chassis:
Dimensions
Engine:
Transmission:
Front Axle
House Systems:
Body Construction:



Index
Top
Index
Top
Index
Top
Index
Top
Index
Top
Index
Top
Index
Top
Index
Top
Index
Top
Index
Top
World Class RV - Video
World Class RV - Coaches in Build
eXTReMe Tracker

Interior:__

Motor Homes

Caravans

Fast Facts:__

Chassis:__


                32, 35, 37, & 40 feet

                8 Air Bag Suspension with 100mm dump feature

                275/75/22.5 Low Profile XZA Michelin Tyres

                Alcoa Alloy Wheels

                Hi Tensile Chassis Rails

                Remote Side Compartment Service Centre

                12 Volt System

                Wide Track Axles

Enlarge
Enlarge
Enlarge
Enlarge
Enlarge

Index,

Body Construction:__


                Sub Structure -                  Galvanised 65mm x 65mm x 3mm Steel SHS

                Side Wall -                         Galvanised 35mm x 35mm x 2mm Steel SHS

                Side Wall Cladding -            Fibreglass 6mm Gelcoated One Piece

                Roof -                                Fibreglass 3mm Gelcoated One Piece

                Compartments -                 Zincanneal 1.6mm Steel Sheet

                Windscreen -                      3M Urethane Bonded to Steel

                Cabin Cockpit -                   Galvanised & P/Coated Steel Frame Construction

                Frame/Body Alignment -       AccuLine Lazer Alignment +/- 1mm

                Air Systems -                      CPS Leak Detection Process

                Mounting -                         52 x Hi-Tensile Grade '8' bolt retention

                Welded Intergration -          400amp Metal Inert Gas finished with 95% Zinc coating

House Systems & Features:__

                

                Fresh Water Capacity -          1020 ltr    

                        Tank 1 -                        385 ltr

                        Tank 2 -                        470 ltr

                        Tank 3 -                        165 ltr

                Grey Tank -                           227 ltr

                Black Tank -                          135 ltr (secondary)


                Toilet -                              Thetford Tecma Ceramic bowl with Macerator

                                                        World Class Eco Toilet system (no dumping required)

                

                Generator -                        6.6KVA PowerTech 3 Cylinder Kubota 240v/50Hz

                

                Hot Water -                        Oasis Diesel Hydronic Hot Water System

                Comfort heat -                    Oasis Diesel Coach 4 Zone Ducted Radiant Heating System

                

                Propane (LPG) -                  36 kg (4 x 9kg bottles)

                Solar Roof Panels -              560 watt (4 x 140watt)

                

                

                



                Inverter -                           MasterVolt 2500 watt

                Battery Charger -                MasterVolt 100amp/5amp House/Engine

                

                


                Refrigerator -                      VitriFrigo DW360BTX 12volt/240volt

                Washer/Dryer -                   Ariston AML-125 7.5kg wash & 4.5kg dry combo

                Roof A/C -                          2 x Air Command - Commorant R/cycle Ducted

  

Driver Conveniences:__


                World Class 2 zone ProAir A/C system

                ZF Variable Power Steering

                Cruise Control

                Anti Lock Braking System(ABS)

                Smart Steering Wheel with Controls for Wipers,Lights,Cruise

                Electric Control Adjustable Brake & Accelerator Pedals

                Electric Push Button Internal Sun Visors

                Panoramic One Piece Windscreen

                Euro Style Windscreen Wipers

                Euro H4 Projection Headlights

                Euro Tail Lights

Rear Axle & Suspension:__


                Capacity - 10,500kg                     

                Ride Well 4 position Air Bag Suspension

                Meritor RS-21-160 Rear Axle

                Ratio 4.88

                Wabco Air Brakes

Front Axle & Suspension:__


                Capacity - 5,500kg                      

                Ride Well 4 position Air Bag Suspension

                Hendrickson Steer Axle (Right Hand)

                Wabco Air Brakes

  

Transmission:__


                Allison 3000 Series

                6 Speed Double Over/drive

                Electronically Controlled

                Drivers Push Button Shift Control

Engine:__          


                Cummins ISB 6.7ltr XT Turbo Diesel (rear mounted)

                268kw(360Hp)

                1085Nm(800ftlb)@1800rpm

                Variable Turbo with Internal Exhaust Engine Brake

                ADR & Euro Emission Compliant

  

Dimensions & Capacities:__

                

                Wheel Base:       

                        32' -                     5.385 mm

                        35' -                     6.300 mm

                        37' -                     6.910 mm

                        40' -                     7.825 mm

                Width -                         2.495 mm

                Rear O/hang -               3.225 mm

                Height - (Dumped)      3.800 (3.700) mm

                GVM -                          15.000 kg

                GCM -                          19.500 kg

                Towing Capacity -           4.500 kg

                Diesel Fuel Capacity -       385 ltr

                Drivers Licence -                 MR

TOP

Enlarge
Enlarge
Enlarge
Enlarge
Enlarge
Enlarge
Enlarge

Cummins Engines Video

Allison Transmissions Video
Enlarge
Enlarge
Enlarge
Enlarge
Enlarge

MasterVolt Video
Enlarge

Exterior Graphics:__

Colour/Graphic code ~ DD213 (32 foot Coach shown)

Colour/Graphic code ~ DD104 (32 foot Coach shown)

Enlarge
Enlarge
Enlarge
Enlarge
Enlarge
Enlarge
Enlarge
Enlarge

Note:This page is currently being updated, Specifications may change without notice.

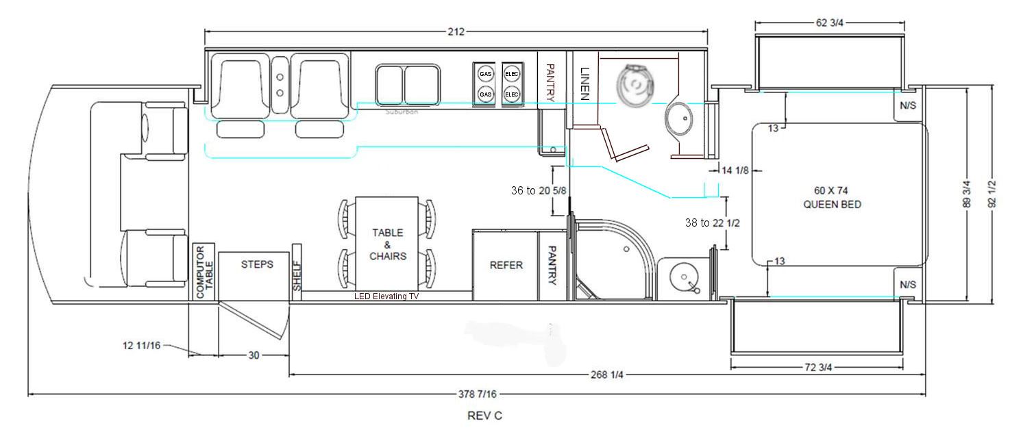
Floor Plan__

Enlarge

~ 32 ~

Enlarge

~ 35 ~

Enlarge
Enlarge
Enlarge
Enlarge
Enlarge
Enlarge
Enlarge
Enlarge

  

New Video

Coaches

in build

and available:

"Click Here"